
上質な暮らしと開放感を叶える ジャパニーズモダンの平屋
日程:
11.18
[Tue]
〜
11.30
[Sun]
①10:00~12:00
②13:00~15:00
③15:00~17:00
④17:00~19:00
場所:湖西市新所
(さわやか 湖西浜名湖店から車で3分)
上質な暮らしと開放感を叶える
ジャパニーズモダンの平屋
実際に訪れると驚くほどの広がりを感じられる平屋が完成しました。
開放感を演出する工夫や子どもの生活に
配慮した間取りで、子育て世代にぴったりの住まいです。
外観・内観は落ち着いたトーンで統一。
石目調のアクセントや無垢ウォルナットの
床材を取り入れ、暮らしに上質さを添えた
ジャパニーズモダンの空間をぜひご覧ください。
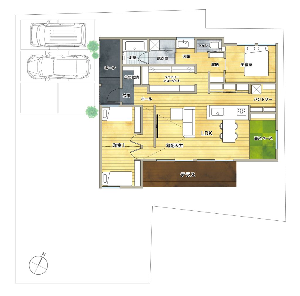
Plan

3LDK+独立洗面+畳スペース+パントリー+ファミリークローゼット
敷地面積:91.92坪
建築面積:30.10坪
家づくりをお考えの方へご案内
※進呈条件あり 詳細はページ下部に記載



落ち着いたダークトーンまとめ、
グレーの塗り壁に縦格子が映える上質な佇まい。
深い軒と水平ラインが美しい
ジャパニーズモダンの平屋

大開口の窓から自然光がたっぷり差し込み
外の景色を取り込む開放的なLDK。
ウォルナットの床と木の天井が
空間に落ち着きと上質さを添えます。
キッチン・ダイニング・リビングが繋がり、
家族が自然と集まれる心地よい空間です。

タカラスタンダードの「オフェリア」を採用しデザインと使いやすさを両立。
腰壁で手元を隠しながらカウンター
のように使える工夫を取り入れました。
壁上部を開けた「腰壁」を各所に配置し
視線が抜ける開放感ある空間を実現しています。


買い物から帰宅後、玄関から直進で
パントリーへ行ける動線や
水まわりを一か所にまとめた設計で
スムーズな暮らしを実現。
また至る所に収納を設置し、
生活感をすっきり隠して心地よい空間を保てる住まいです。
DATA
- 【耐震】
耐震等級3
許容応力度計算 - 【断熱】
断熱等級6
設計住宅性能評価 - 【断熱】
Ua値0.42 - 【気密】
C値0.1 - 【換気】
3種換気
Panasonic - 【断熱材】
フォームライトSL
フォーム断熱 - 【断熱材】
EPS
カネカ - 【外壁】
塗り壁
DCPウォール - 【外壁】
エバーアートウッド
TAKASYO - 【内壁】
SPクロス
サンゲツ - 【床材】
無垢床
ブラックウォールナット
興亜通商 - 【床材】
複合フローリング
ウッドワン - 【床材】
フロアタイル
サンゲツ - 【床材】
健やか畳おもて
DAIKEN - 【キッチン】
オフェリア
タカラスタンダード - 【お風呂】
サザナ
TOTO - 【1階トイレ】
ZJ2
TOTO - 【洗面】
造作
ポータルサイト『イエタテ』で3期連続
人気ランキング1位をいただきました

家づくりをお考えの方へご案内

◎1回目ご来場特典
Webアンケートのご入力&公式LINEの友達登録&Google口コミの投稿で
Amazonギフト券5,000円分をプレゼント!
◎2回目以降
資金計画のご提案で特典
2回目以降に資金計画のご提案を受けていただいた方には、
さらにAmazonギフト券5,000円分をプレゼント!
【進呈条件】
①2025年11月1日(土)~30日(日)の期間中に
初めてご来場いただいた方。
②2年以内に弊社施工可能エリア
(愛知県全域・静岡県湖西市・浜松市)
にて新築を検討されている方。
③Webからご予約いただいた方
④ご夫婦お二人、またはご夫婦2人と
お子様でご来場の方。
※ご夫婦=ご婚約、事実婚を含みます。
※やむを得ずお一人でご来場の場合は
2回目以降のお打ち合わせの際、
ご夫婦お揃いになられましたら来場特典
を進呈いたしますのでご了承ください。
※上記以外の未婚で建築予定の方は
その旨、営業担当へお伝えください。
※初来店の方が対象になります。
(家づくりフェアなどでご相談済みのお客様は対象外となります。)
【備考】
※ご来場イベントのエントリールールに沿ってご来場いただけなかった場合や、
ご相談の内容により建築のご予定がないと当社で判断させていただいた場合に
ご来場特典のお渡しを中止させていただく場合がございます。
予めご了承くださいませ。





















